Sandra MARTIN
Négociatrice
Contacter l'agent
Vendu
Maison 4 pièce(s) 3 chambre(s) 83 m²
Troyes (10000)
Nous consulter
Référence 507
A propos de ce bien
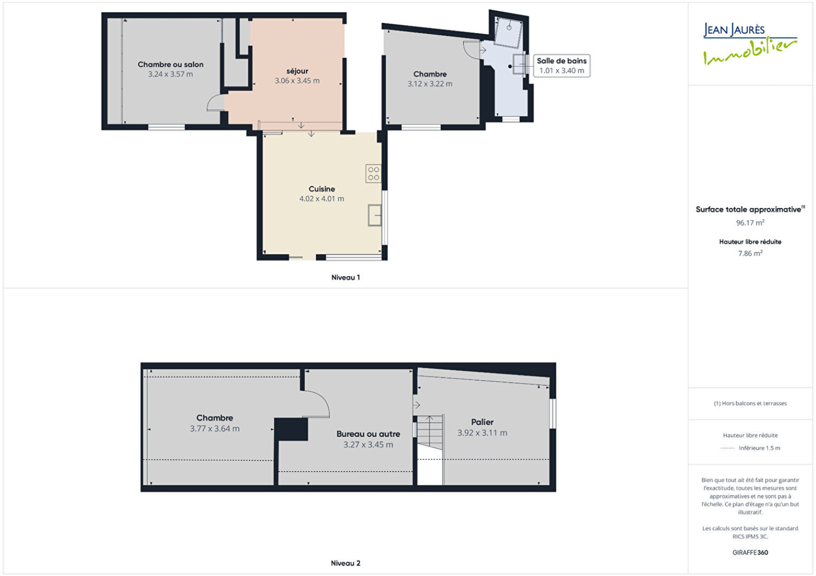
Située proche du centre ville de Troyes, dans un quartier calme, cette maison cosy offre un cadre de vie agréable. Elle possède de nombreux atouts : Une excellente classification énergétique grâce à des équipements récents ( Pompe à chaleur/clim réversible, chauffe eau Thermodynamique, combles isolées, DV PVC ) une surface de 83m² lumineuse avec au RDC une cuisine équipée, séjour, 2 chambres, wc, salle d'eau, et un beau potentiel à l'étage avec 3 pièces à aménager selon vos besoins. Un joli terrain avec terrasse et un hangar de 54m². Un bien idéal pour une première acquisition ! Contactez votre agence Jean Jaurès immobilier pour tous les détails.
Les informations sur les risques auxquels ce bien est exposé sont disponibles sur le site Géorisques
Les informations sur les risques auxquels ce bien est exposé sont disponibles sur le site Géorisques
Caractéristiques de ce bien
- Surface 83 m²
- terrain 398 m²
- séjour 28 m²
- 3 chambre(s)
- 1 salle(s) d'eau
- construit en 1930
- TRAD_DETAIL_INFOS_GLOBAL_DEFAULT_CUISINE_FORMATED_AMENAGEE_EQUIPEE
- Chauffage individuel : autre (pompe à chaleur)
- exposition EST-SUD
- 1 étage(s)
- terrasse
Diagnostics énergétiques
Consommation énergétique
A
B
C
D
E
F
G
Emission de gaz à effet de serre
A
B
C
D
E
F
G
DPE en cours
Diagnostics énergétiques
DPE en cours
Informations financières
Taxe foncière annuelle
1 090 €
Autour du bien
-
Commerces et santé
-
Loisirs
-
Ecoles
-
Transports
-
Pratique