Valérie DAMIS Négociatrice
Télécharger la fiche
Sous-compromis

Maison 12 pièce(s) 5 chambre(s) 342 m²

Sainte-Savine (10300)
299 000 € Référence V50000614

A propos de ce bien

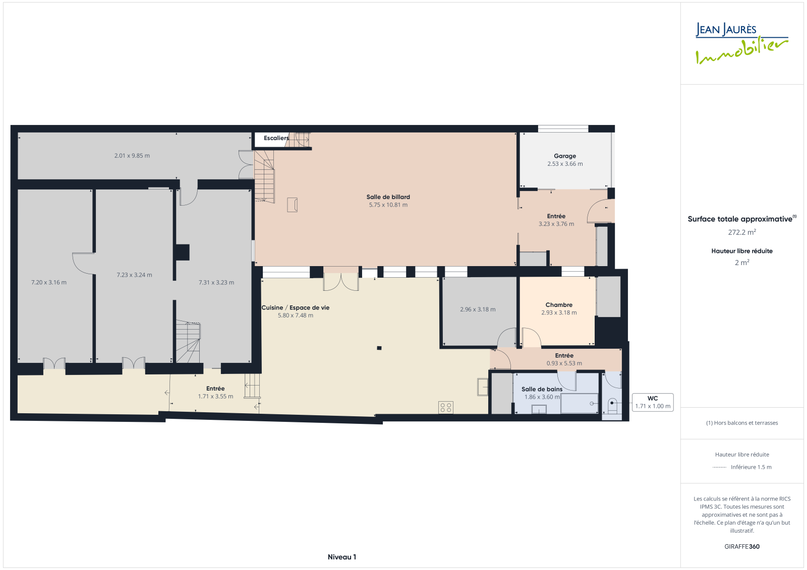
L'agence Jean Jaurès vous propose ce loft atypique à finir de rénover : calme des lieux, petit extérieur, garage à vélo, et 340 m2 de "terrain de jeu" pour accueillir les projets les plus divers !!

Actuellement une pièce loisir de 60 m2 donne accès à la pièce de vie de 66 m2 avec cuisine américaine; de cet espace vous accéderez à un premier espace nuit : 2 chambres, wc, sallle d'eau.

Historiquement l'ancienne atelier était adossé à une maison 'en fond de cour' : cet espace a été aménagé en 3 pièces qui constitueront 3 chambres après aménagement (toutes ouvrantes par porte vitrées sur un couloir éclairé par plusieurs velux) ; un espace bureau complète ce niveau.

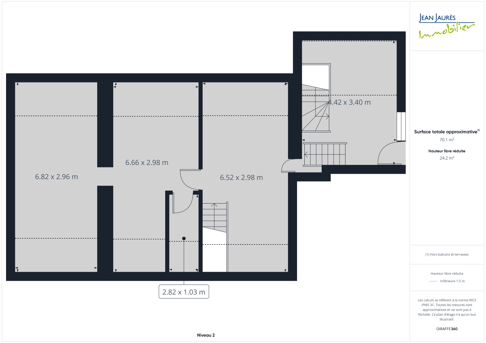
A l"étage un palier dessert une chambre avec un espace bureau et une salle d'eau à aménager.

Des aménagements supplémentaires permettront d'accueillir des projets aux différents usages : une vraie surprise au beau potentiel !!

Si votre projet est du "tout habitable" vous pourrez diposer de 5/6 chambres, et de 2 salles d'eau.

A noter que sous la partie constituée de l'ancienne maison, vous disposez de caves et stockage.

Caractéristiques de ce bien

  • Surface 342 m²
  • séjour 66 m²
  • 5 chambre(s)
  • 1 salle(s) de bain
  • construit en 1930
  • cuisine américaine
  • Chauffage individuel : autre (electrique)
  • 1 garage(s)
  • 2 niveau(x)

Diagnostics énergétiques

Consommation énergétique
A B C D E F G
Emission de gaz à effet de serre
A B C D E F G

Montant estimé des dépenses annuelles d'énergie pour un usage standard est compris entre 2 680 € et 3 690 € . Prix moyens des énergies indexés sur les années 2021, 2022 et 2023 (abonnements compris).

Informations financières

Prix de vente honoraires TTC inclus 299 000 €
Taxe foncière annuelle 1 093 €

Autour du bien

  • Commerces et santé
  • Loisirs
  • Ecoles
  • Transports
  • Pratique

Calcul des mensualités

* Champs obligatoires